※当ページへの無断リンクはお断りいたします
三田ステーションビルアミタ
港区の中央に位置し、オフィス街と知られるエリアですが、慶応中通り商店街からも近く、周囲は活気に溢れています。都営地下鉄「三田」駅に直結しており、直通電車で羽田空港まで約26分、JR「田町」駅からはペデストリアンデッキで徒歩2分とアクセスの良さを誇ります。駅前の第一京浜沿いに立地しており、大型看板の掲出も相談可能と抜群の視認性も魅力です。コンビニ・飲食店・ATMなども入居している複合ビルです。
基本情報
| 所在地 | 港区芝5-31-7 |
|---|---|
| 敷地面積 | 398.89㎡(120.66坪) |
| 延床面積 | 2,951.12㎡(892.71坪) |
| 賃室総面積 | 728.32㎡(220.30坪) |
| 基準階賃室総面積 | 216.97㎡(65.63坪) |
| 構造 | SRC造 |
| 規模 | 地下2階/地上12階 |
| 駐車場 | 無 |
| セキュリティ | ― |
| 天井高 | 2,400mm |
| OAフロア | ― |
| コンセント容量 | ― |
| 床荷重 | ― |
| 施工年月 | 1997年3月 |
| アクセス | 都営地下鉄「三田駅」直結 |
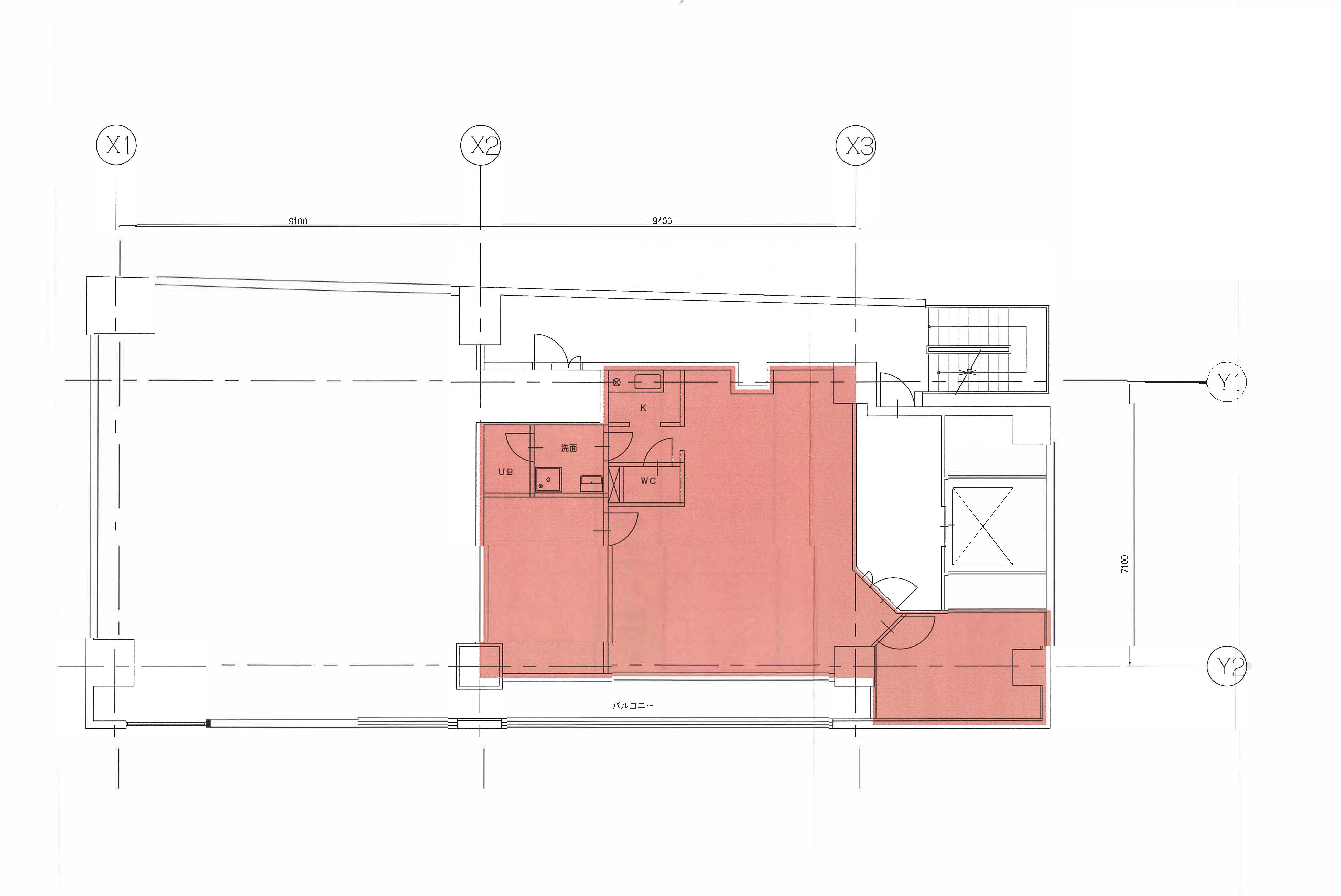
空室情報
| 区画 | 用途 | 面積(坪数) | 賃料・共益費 | 敷金 | 入居可能日 | 平面図 |
|---|---|---|---|---|---|---|
| 8階(802号室) | 事務所 | 101.23㎡ (30.62坪) |
応相談・賃料に含む | 6ヶ月分 | 即日 | 平面図 |
| 7階(702号室) | 事務所 | 101.23㎡ (30.62坪) |
応相談・賃料に含む | 6ヶ月分 | 2026年5月1日 | 平面図 |
| 7階(701号室) | 事務所 | 83.22㎡ (25.17坪) |
応相談・賃料に含む | 6ヶ月分 | 2026年5月1日 | 平面図 |